Ferienhaus & Ferienwohnung - Kroatien - Kvarner Bucht Inseln - Insel Krk - Pinezići

Ferienwohnung - Comfortable, well equiped Mediterranean apartment for your deserved vacation!

ab 50 € pro Nacht


 
Unterkunft:
Anzahl der Badezimmer
Ferienwohnung
55 m2
Personen
5
Schlafzimmer
2
Badezimmer
2

Über die Unterkunft:

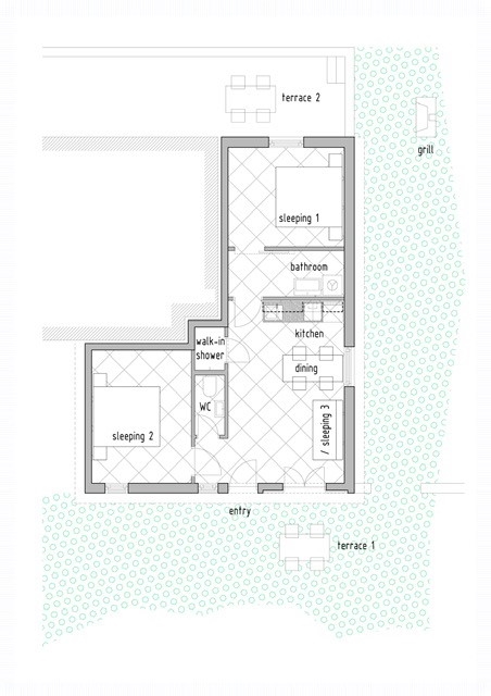
Das Apartment Cedrus *** (für 1-5 Personen, 4+1) befindet sich auf der Insel Krk in Kroatien, im Dorf Pinezici, am Ende einer ruhigen Straße abseits der Hauptstraße, im Erdgeschoss. Es hat einen eigenen separaten Eingang und dies ist die einzige zu vermietende Wohnung im Familienhaus. Apartment

mehr lesen...
Cedrus ist gut ausgestattet für einen komfortablen Urlaub. Es hat: 2 separate Schlafzimmer für maximale Privatsphäre und einen komfortablen Aufenthalt (Doppelbetten 160 x 200 cm), Bettwäsche vorhanden Küche und Wohnzimmer mit einem Sofa, das als Zustellbett genutzt werden kann (160 x 200 cm), 3 Badezimmer: Toilette, begehbare Dusche und ein separater Raum mit Badezimmermöbeln und Waschmaschine. Die Küche ist komplett ausgestattet: E-Herd mit 4 Kochplatten, Kühlschrank mit Gefrierfach, Filterkaffeemaschine, Geschirrspüler, Wasserkocher, Toaster, Wasserkocher, Mixer, Geschirr, Töpfe. Besteck und Handtücher (1 pro Person) sind vorhanden. Die Wohnung verfügt über Klimaanlage, Flachbildfernseher mit Kabelkanälen, kostenloses WLAN und einen Safe. Für zusätzlichen Komfort und Genuss im Freien stehen den Gästen zwei Gartenmöbel zur Verfügung - eines vor der Wohnung, das andere hinter dem Haus. Darüber hinaus gibt es einen Außengrill mit allen Geräten. Die Wohnung verfügt über zwei Parkplätze. Es eignet sich für alle, die sich erholen möchten und einen Ort suchen, um dem Alltag zu entfliehen und ihren Urlaub außerhalb großer Touristenzentren verbringen möchten: Familien mit Kindern, Senioren, Paare, Freunde, Verwandte, Rentner ... werden es genießen hier. Bei Apartmentbuchung sind 100 EUR im Voraus auf unser Bankkonto zu überweisen, der Rest bei Ankunft. Apartment Cedrus - ein komfortables, mediterranes Apartment für Ihren wohlverdienten Urlaub! Wir freuen uns auf Ihre Anfragen und Ihren Besuch! Herzlich willkommen! Preisliste 30.04 - 16.05.2023 50 EUR 27.05 - 16.06 2023 55 EUR 17.06 - 30.06.2023 70 EUR 01.07 - 07.07.2023 80 EUR 08.07. - 18.08.2023 95 EUR 19.08. - 01.09.2023 80 EUR 02.09 - 09.09.2023 60 EUR 10.09 - 01.10.2023 45 EUR

Vermieter:
Gordana Premec
inseriert hier seit Januar 2016

Der Gastgeber spricht: Englisch, Croatien

Unterkunftsart:
Ferienwohnung
55 m2 Wohnfläche
Haustiere erlaubt
Nichtraucherhaus
abgeschlossenes Grundstück
Baujahr 1980
letzte Renovierung 2021

Anfrage senden

Ausstattung
Schlafzimmer:
2 Schlafzimmer
2 Doppelbetten
1 Schlafsofa
  • Kinderbett auf Wunsch
  • Bettwäsche ist vorhanden
  • Kleiderbügel
Badezimmer:
2 Badezimmer
  • Dusche
  • Handücher
  • Föhn
Küche:
1 Küche
  • Kühlschrank
  • Geschirrspüler
  • Gefrierfach
  • Kaffeemaschine
  • Geschirrtücher
Ausstattung innen:
  • Klimaanlage
  • SAT, Kabel-TV
  • Bügeleisen
Ausstattung aussen:
  • Grillplatz
  • Garten
  • Gartenmöbel
  • KFZ-Stellplatz auf dem Grundstück
Extras:
  • Waschmaschine
Sicherheit:
  • Erste Hilfe Set
geeignet für:
  • Senioren
  • Langzeitmiete
  • Gruppen, da weitere Unterkünfte vorhanden sind
Verpflegungs-Angebote:
Nachfolgende Verpflegungsangebote können bei dem Vermieter vor Ort gebucht werden. Die Bezahlung erfolgt direkt beim Vermieter.
  • Brötchenservice
Freizeit-Angebote:
  • Angeln/Fischen
  • Boot, Kanu, Segeln
  • Wassersport
  • Tauchen
  • Radfahren, Mountainbiking
  • Wandern
  • Kulturangebote
  • Nachtleben
Entfernungen:
  • Apotheke: 12 km
  • Arzt: 12 km
  • Bank, Geldautomat: 12 km
  • Einkaufen: 12 km
  • Restaurant: 0.800 km
  • Ortsmitte: 0.200 km
  • Busstation: 12 km
    Krk City
  • Flughafen: 12 km
    Rijeka
  • nächste größere Stadt: 12 km
    Krk City
  • Gewässer: 0.700 km
    Jert Beach
Anreise, Abreise:
  • Rijeka
  • Check In um: 15:30 Uhr
  • Check Out bis: 10:00 Uhr
  • Mindestaufenthalt: 4 Nächte

Anfrage senden

Bewertungen

Anfrage senden

Lage

Anfrage senden